Vanzare apartament 2 camere, 66 mp., etaj 2 din 3, bloc 2025, Dobroesti, Fundeni, Dragonul Rosu

94.999€
ID:REM142  Dobroesti,  

Descriere apartament

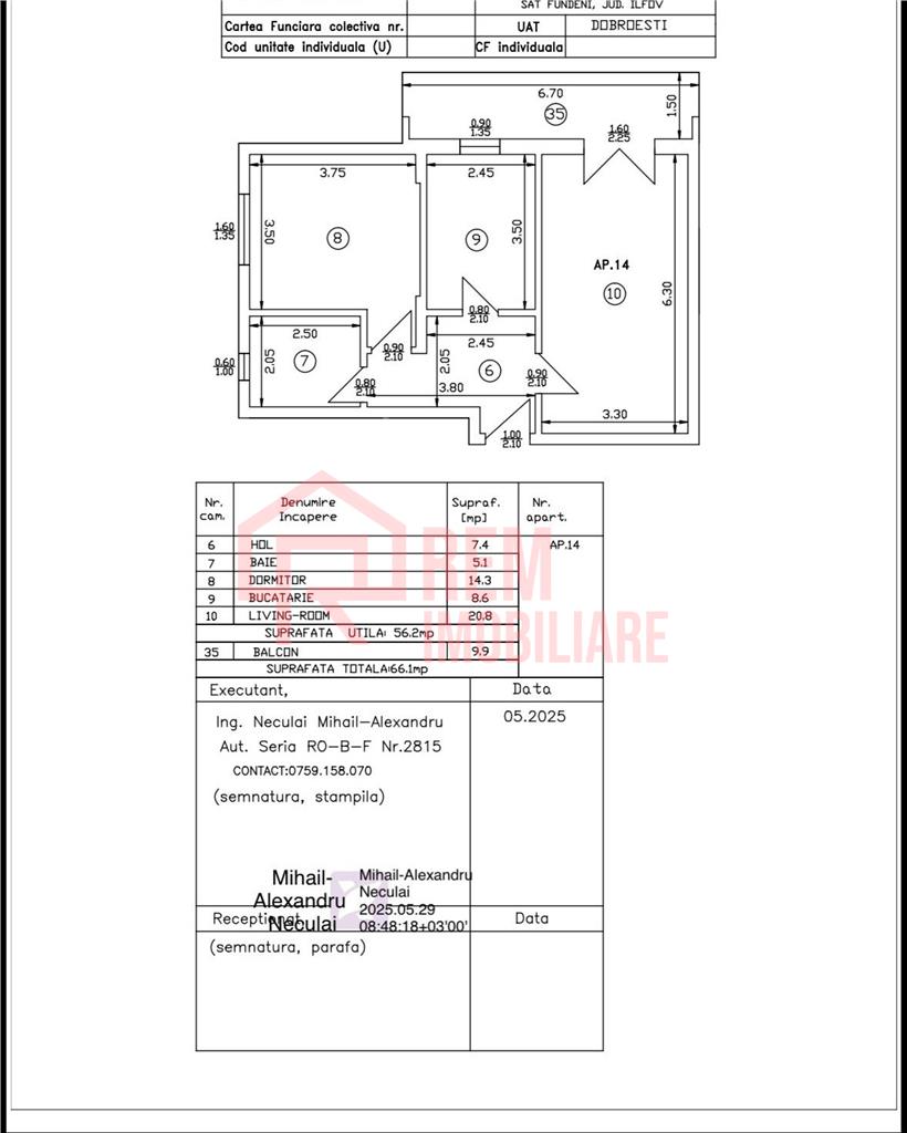
REM IMOBILIARE va ofera spre vanzare un apartament cu 2 camere, foarte spatios, decomandat, in suprafata de 66.1 mp., situat in Dobroesti, pe strada Piersicului, Fundeni, la 1 minut de statia STB.

Pret: 94.999 euro, tva 21% inclusa in pret!

Blocul este compus din S+P+3 etaje si este dat in folosinta in 2025, apartamentul se afla la etajul 2. Imobilul dispune de lift. Suprafata totala a apartamentului este de 66.1 mp, din care 9.9 mp, balcon.  Are centrala termica. Bucataria este inchisa, in suprafata de 8.6 mp. Finisajele sunt de foarte buna calitate. Apartamentul este nou, liber, cu predare la semnarea actelor de vanzare, gata de locuit!

Optional, se poate achizitiona loc de parcare in parcarea subterana, pret 10.000 euro, sau supraterana, pret 5.000 euro, pret cu tva inclusa. In subsolul blocului se pot achizitiona boxe pentru depozitare, de diverse suprafete, foarte utile si la indemana.

Zona este linistita.  In apropiere se gasesc magazine, gradinita privata, sala fitness, bazin de inot, coafor, farmacie, pizzerie, STB - statie 343, 182 langa bloc. La granita cu Sectorul 2, Bucuresti, aproape de Soseaua Fundeni si Colentina. Se poate iesi cu usurinta din Bucuresti spre autostrada A3. 

Pentru mai multe detalii si vizionare, nu ezitati sa ma contactati!

Madalina Ruseteanu- Consultantul tau in imobiliare

0772203961

Va asteptam la vizionare!

www.remimob.ro

Caracteristici apartament

  • Zona:
  • Suprafata utila: 56.2 mp
  • Confort: 1
  • Compartimentare: decomandat
  • Etaj: 2/
  • Numar Bai: 1
  • Numar Balcoane: 1
  • Numar Camere: 2
  • An Constructie: 2025
  • Clasa Energetica: A

Caracteristici generale apartament

  •  Calorifere:Da
  •  Contorizare:Apometre Contor electric Contor gaz
  •  Geam baie:Da
  •  Incalzire:Centrala proprie

Harta

Tel: 0772203961 whatsapp